Aller à :

  • Aller à la recherche
  • Aller au menu principal
  • Aller au contenu
0
  • Accueil
  • Acheter
    • Maisons / Villas
    • Appartements
    • Terrains
    • Autres
  • Louer
  • Estimer
  • Expertiser
  • Contact
0
VotreRecherche
Dans un rayon de
BUDGET
entre et €
Min €
Max €
  1. Agence immobilière Le Cannet
  2. Vente
  3. Alpes maritimes
  4. Le cannet
  5. Appartement
  6. T3
  7. Lumineux 3 pieces au coeur des commodites
Nouveauté
Réf : db 4423
Appartement
Lumineux 3 pièces au cœur des commodités
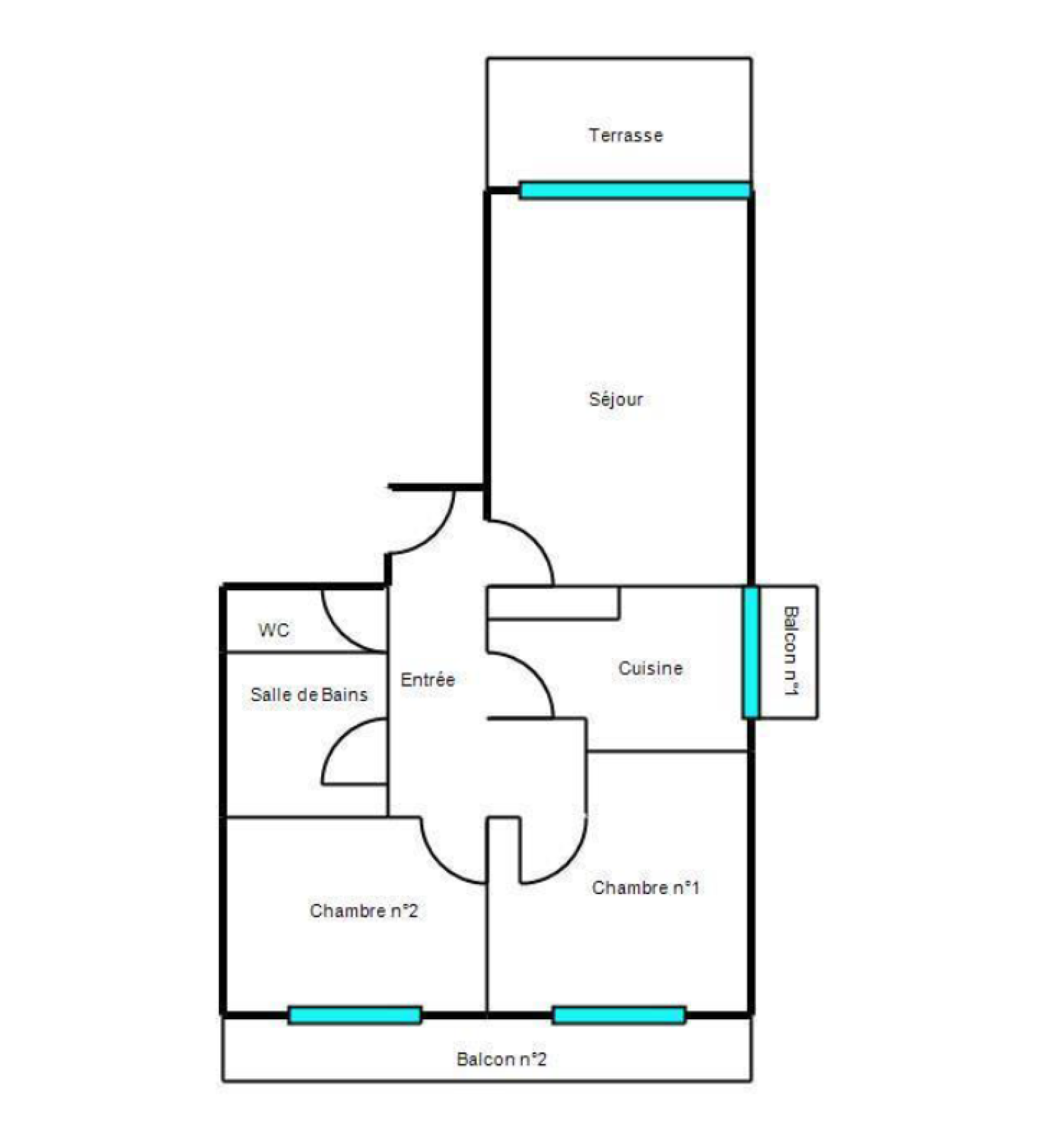
Nombre de pièces 3
Nombre de chambres 2
Nombre de salles de bain 1
Nombre de balcons 2
215 000 €

Lumineux 3 pièces au cœur des commodités Le Cannet (06110)

A proximité immédiate de toutes les commodités, dans le quartier du Grande Bretagne, lumineux 3 pièces traversant de 54 m². Il se compose d'un hall, un séjour au clame exposé à l'Ouest, prolongé d'une confortable terrasse de 7 m², une cuisine indépendante et aménagée avec balcon, deux chambres ouvertes sur un second balcon à l'Est, une salle de bains et un WC indépendant. Charges/an : 3.359 € comprenant le chauffage et l'eau chaude. DPE : E. Les informations sur les risques auxquels ce bien est exposé sont disponibles sur le site : https://www.georisques.gouv.fr.

  • Général
  • Détails +
  • Copropriété
  • Financier
  • DPE
Caractérisque Valeurs
Code postal 06110
Surface habitable (m²) 54 m²
Surface loi Carrez (m²) 54,06 m²
Nombre de chambre(s) 2
Nombre de pièces 3
Etage 1
Caractérisque Valeurs
Nb de salle de bains 1
Cuisine Séparée
Mode de chauffage Gaz
Type de chauffage TRAD_TYPE_CHAUFF_CHAUDIERE
Format de chauffage Collectif
Balcon OUI
Terrasse OUI
Cave NON
Exposition Ouest
Année de construction 1965
Caractérisque Valeurs
Copropriété OUI
Lot n° 31
Quote Part annuelle des charges 3 359 €
Caractérisque Valeurs
Prix de vente 215 000 €
Les honoraires d'agence seront intégralement à la charge du vendeur  
Charges 279 €
Taxe foncière annuelle 1 094 €
DPE GES
Cette offre vous intéresse
BARDIN Damien Négociateur
04 92 18 11 11
E-mail damien@bandelierimmobilier.com
cette offre vous intéresse ?
Contacter l'agence
04 92 18 11 11

* champs obligatoire

Les informations recueillies sur ce formulaire sont enregistrées dans un fichier informatisé par La Boite Immo agissant comme Sous-traitant du traitement pour la gestion de la clientèle/prospects de l'Agence / du Réseau qui reste Responsable du Traitement de vos Données personnelles. La base légale du traitement repose sur l'intérêt légitime de l'Agence / du Réseau. Elles sont conservées jusqu'à demande de suppression et sont destinées à l'Agence / au Réseau. Conformément à la loi « informatique et libertés », vous disposez des droits d’accès, de rectification, d’effacement, d’opposition, de limitation et de portabilité de vos données. Vous pouvez retirer votre consentement à tout moment en contactant directement l’Agence / Le Réseau. Consultez le site https://cnil.fr/fr pour plus d’informations sur vos droits. Si vous estimez, après avoir contacté l'Agence / le Réseau, que vos droits « Informatique et Libertés » ne sont pas respectés, vous pouvez adresser une réclamation à la CNIL. Nous vous informons de l’existence de la liste d'opposition au démarchage téléphonique « Bloctel », sur laquelle vous pouvez vous inscrire ici : https://www.bloctel.gouv.fr Dans le cadre de la protection des Données personnelles, nous vous invitons à ne pas inscrire de Données sensibles dans le champ de saisie libre.
Ce site est protégé par reCAPTCHA, les Politiques de Confidentialité et les Conditions d'Utilisation de Google s'appliquent.

Partager le bien
Nos outils
Imprimer Imprimer
Calculatrice financière

* Champ obligatoire

Partager l'annonce

* champs obligatoire

Les informations recueillies sur ce formulaire sont enregistrées dans un fichier informatisé par La Boite Immo agissant comme Sous-traitant du traitement pour la gestion de la clientèle/prospects de l'Agence / du Réseau qui reste Responsable du Traitement de vos Données personnelles. La base légale du traitement repose sur l'intérêt légitime de l'Agence / du Réseau. Elles sont conservées jusqu'à demande de suppression et sont destinées à l'Agence / au Réseau. Conformément à la loi « informatique et libertés », vous disposez des droits d’accès, de rectification, d’effacement, d’opposition, de limitation et de portabilité de vos données. Vous pouvez retirer votre consentement à tout moment en contactant directement l’Agence / Le Réseau. Consultez le site https://cnil.fr/fr pour plus d’informations sur vos droits. Si vous estimez, après avoir contacté l'Agence / le Réseau, que vos droits « Informatique et Libertés » ne sont pas respectés, vous pouvez adresser une réclamation à la CNIL. Nous vous informons de l’existence de la liste d'opposition au démarchage téléphonique « Bloctel », sur laquelle vous pouvez vous inscrire ici : https://www.bloctel.gouv.fr Dans le cadre de la protection des Données personnelles, nous vous invitons à ne pas inscrire de Données sensibles dans le champ de saisie libre.
Ce site est protégé par reCAPTCHA, les Politiques de Confidentialité et les Conditions d'Utilisation de Google s'appliquent.

Détail des diagnostics énergétiques
DPE GES

Montant estimé des dépenses annuelles d'énergie de ce logement pour un usage standard est compris entre 854 € et 1 156 € . 2021 étant l'année de référence des prix de l'énergie utilisés pour établir cette estimation.

Partager avec vos proches

Facebook Facebook
Messenger Messenger
Twitter Twitter
WhatsApp WhatsApp
LinkedIn LinkedIn
Copier le lien Copier le lien
Autres biens

Ces biens peuvent aussi vous intéresser

Appartement

quartier calme et apprécié, 2 p 54 m2 sur terrasse de 25 m2

Le Cannet (06110)
Exclusif
Voir le bien
Appartement

en étage 2 p 53 m2 avec terrasse 14 m2 au calme

Le Cannet (06110)
Voir le bien
Contacter
l'agence

Remplissez ce formulaire, nous ferons de notre mieux pour vous répondre dans les meilleurs délais.

Bandelier Immobilier
04 92 18 11 11
E-mail agence@bandelierimmobilier.com

Rond point du Grande Bretagne
79 Boulevard Sadi Carnot 06110 Le Cannet

TRAD_MELTEM_voscoordonnees
TRAD_MELTEM_voredemande
Règlementation

* Champ obligatoire

Les informations recueillies sur ce formulaire sont enregistrées dans un fichier informatisé par La Boite Immo agissant comme Sous-traitant du traitement pour la gestion de la clientèle/prospects de l'Agence / du Réseau qui reste Responsable du Traitement de vos Données personnelles. La base légale du traitement repose sur l'intérêt légitime de l'Agence / du Réseau. Elles sont conservées jusqu'à demande de suppression et sont destinées à l'Agence / au Réseau. Conformément à la loi « informatique et libertés », vous disposez des droits d’accès, de rectification, d’effacement, d’opposition, de limitation et de portabilité de vos données. Vous pouvez retirer votre consentement à tout moment en contactant directement l’Agence / Le Réseau. Consultez le site https://cnil.fr/fr pour plus d’informations sur vos droits. Si vous estimez, après avoir contacté l'Agence / le Réseau, que vos droits « Informatique et Libertés » ne sont pas respectés, vous pouvez adresser une réclamation à la CNIL. Nous vous informons de l’existence de la liste d'opposition au démarchage téléphonique « Bloctel », sur laquelle vous pouvez vous inscrire ici : https://www.bloctel.gouv.fr Dans le cadre de la protection des Données personnelles, nous vous invitons à ne pas inscrire de Données sensibles dans le champ de saisie libre.
Ce site est protégé par reCAPTCHA, les Politiques de Confidentialité et les Conditions d'Utilisation de Google s'appliquent.

Se connecter
Espace propriétaire
Nous suivre
Adhérents

© 2026 | Tous droits réservés | Traduction powered by Google |

  • Nos honoraires
  • Plan du site
  • Mentions légales
  • Admin
  • Nos liens
  • Politique RGPD

Comme beaucoup, notre site utilise les cookies

On aimerait vous accompagner pendant votre visite. En poursuivant, vous acceptez l'utilisation des cookies par ce site, afin de vous proposer des contenus adaptés et réaliser des statistiques !

Paramétrer

Cookies fonctionnelsCes cookies sont indispensables à la navigation sur le site, pour vous garantir un fonctionnement optimal. Ils ne peuvent donc pas être désactivés.

Statistiques de visitesPour améliorer votre expérience, on a besoin de savoir ce qui vous intéresse !
Les données récoltées sont anonymisées.

?

Google Analytics

En savoir plus