Aller à :

  • Aller à la recherche
  • Aller au menu principal
  • Aller au contenu
0
  • Accueil
  • Acheter
    • Maisons / Villas
    • Appartements
    • Terrains
    • Autres
  • Louer
  • Estimer
  • Expertiser
  • Contact
0
VotreRecherche
Dans un rayon de
BUDGET
entre et €
Min €
Max €
  1. Agence immobilière Le Cannet
  2. Vente
  3. Alpes maritimes
  4. Le cannet
  5. Appartement
  6. T2
  7. Vaste 2 pieces avec vue mer panoramique
Nouveauté
Réf : db 4453
Appartement
Vaste 2 pièces avec Vue mer panoramique !
Nombre de pièces 2
Nombre de chambres 1
Salle d'eau 1
309 000 €

Vaste 2 pièces avec Vue mer panoramique ! Le Cannet (06110)

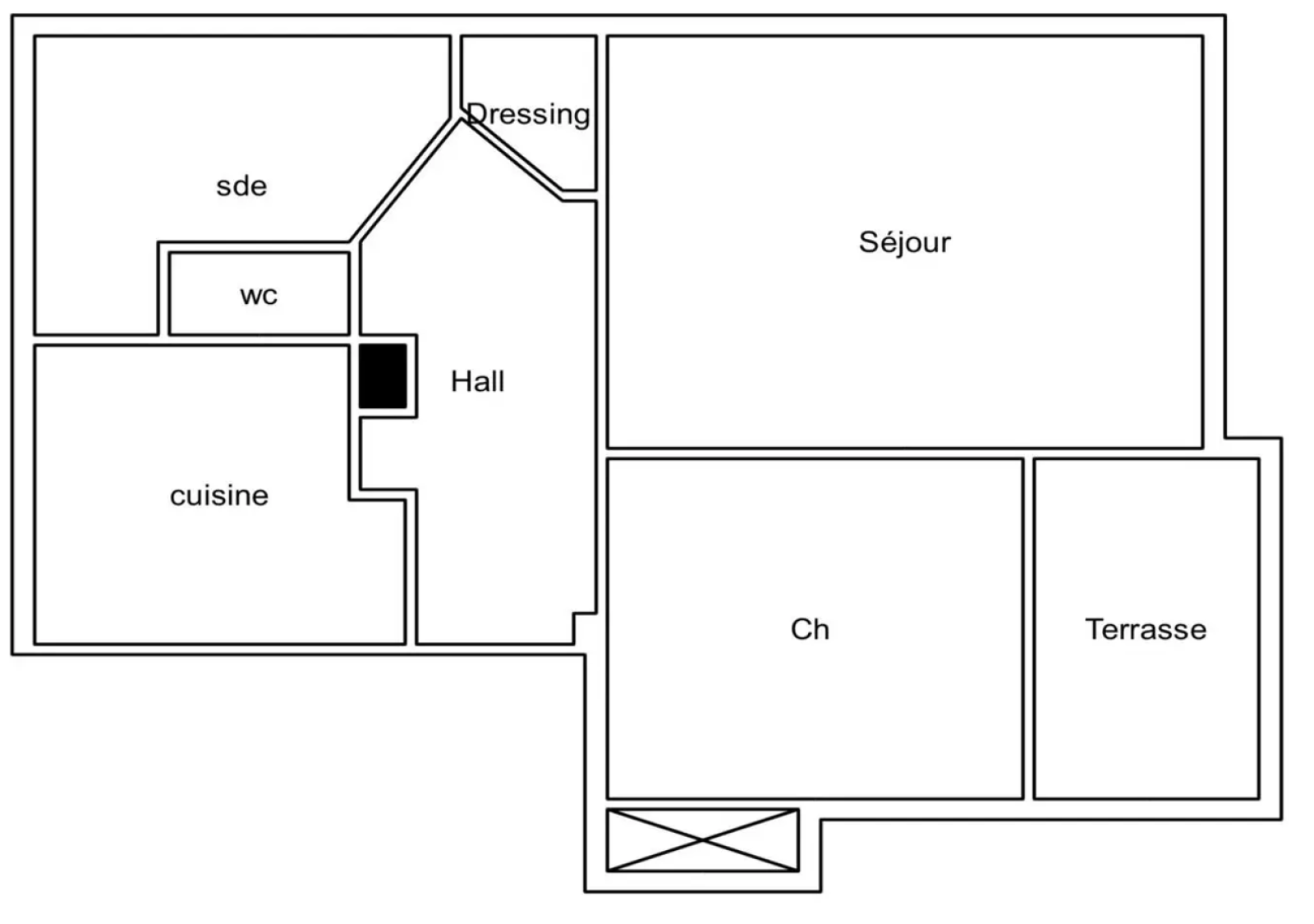
Situé dans le quartier historique du Cannet, à proximité des petites boutiques et des restaurants de la rue Saint Sauveur, ce vaste 2 pièces traversant de 58 m², parfaitement calme, vous séduira par sa vue mer panoramique et dominante. Il se compose d'un hall, un séjour lumineux de 21 m² ouvert sur une terrasse profonde exposée au Sud, une grande cuisine, une chambre confortable, une salle d'eau avec fenêtre, un WC indépendant et un dressing. Ce bien est complété par une cave et bénéficie d’un parking collectif. Il se situe au sein d’une petite copropriété de seulement 8 appartements, garantissant calme et convivialité. Idéal pour une résidence principale, un pied-à-terre ou un investissement de qualité. Charges/an : 1.440 € comprenant l'eau froide. Aucun travaux à prévoir. DPE : D. Les informations sur les risques auxquels ce bien est exposé sont disponibles sur le site : https://www.georisques.gouv.fr

  • Général
  • Détails +
  • Copropriété
  • Financier
  • DPE
Caractérisque Valeurs
Code postal 06110
Surface habitable (m²) 58 m²
Surface loi Carrez (m²) 58,01 m²
Nombre de chambre(s) 1
Nombre de pièces 2
Etage 2
Vue Dominante et dégagée Mer
Caractérisque Valeurs
Nb de salle d'eau 1
Cuisine Séparée
Type de cuisine Equipée
Mode de chauffage Electrique
Type de chauffage Air pulsé
Format de chauffage Individuel
Terrasse OUI
Cave OUI
Surface cave (m²) 5
Exposition Sud
Caractérisque Valeurs
Copropriété OUI
Lot n° 7 - 12
nombre de lots 8
Quote Part annuelle des charges 1 400 €
Caractérisque Valeurs
Prix de vente honoraires TTC inclus 309 000 €
Charges 120 €
Taxe foncière annuelle 944 €
DPE GES
Cette offre vous intéresse
BARDIN Damien Négociateur
04 92 18 11 11
E-mail damien@bandelierimmobilier.com
cette offre vous intéresse ?
Contacter l'agence
04 92 18 11 11

* champs obligatoire

Les informations recueillies sur ce formulaire sont enregistrées dans un fichier informatisé par La Boite Immo agissant comme Sous-traitant du traitement pour la gestion de la clientèle/prospects de l'Agence / du Réseau qui reste Responsable du Traitement de vos Données personnelles. La base légale du traitement repose sur l'intérêt légitime de l'Agence / du Réseau. Elles sont conservées jusqu'à demande de suppression et sont destinées à l'Agence / au Réseau. Conformément à la loi « informatique et libertés », vous disposez des droits d’accès, de rectification, d’effacement, d’opposition, de limitation et de portabilité de vos données. Vous pouvez retirer votre consentement à tout moment en contactant directement l’Agence / Le Réseau. Consultez le site https://cnil.fr/fr pour plus d’informations sur vos droits. Si vous estimez, après avoir contacté l'Agence / le Réseau, que vos droits « Informatique et Libertés » ne sont pas respectés, vous pouvez adresser une réclamation à la CNIL. Nous vous informons de l’existence de la liste d'opposition au démarchage téléphonique « Bloctel », sur laquelle vous pouvez vous inscrire ici : https://www.bloctel.gouv.fr Dans le cadre de la protection des Données personnelles, nous vous invitons à ne pas inscrire de Données sensibles dans le champ de saisie libre.
Ce site est protégé par reCAPTCHA, les Politiques de Confidentialité et les Conditions d'Utilisation de Google s'appliquent.

Partager le bien
Nos outils
Imprimer Imprimer
Calculatrice financière

* Champ obligatoire

Partager l'annonce

* champs obligatoire

Les informations recueillies sur ce formulaire sont enregistrées dans un fichier informatisé par La Boite Immo agissant comme Sous-traitant du traitement pour la gestion de la clientèle/prospects de l'Agence / du Réseau qui reste Responsable du Traitement de vos Données personnelles. La base légale du traitement repose sur l'intérêt légitime de l'Agence / du Réseau. Elles sont conservées jusqu'à demande de suppression et sont destinées à l'Agence / au Réseau. Conformément à la loi « informatique et libertés », vous disposez des droits d’accès, de rectification, d’effacement, d’opposition, de limitation et de portabilité de vos données. Vous pouvez retirer votre consentement à tout moment en contactant directement l’Agence / Le Réseau. Consultez le site https://cnil.fr/fr pour plus d’informations sur vos droits. Si vous estimez, après avoir contacté l'Agence / le Réseau, que vos droits « Informatique et Libertés » ne sont pas respectés, vous pouvez adresser une réclamation à la CNIL. Nous vous informons de l’existence de la liste d'opposition au démarchage téléphonique « Bloctel », sur laquelle vous pouvez vous inscrire ici : https://www.bloctel.gouv.fr Dans le cadre de la protection des Données personnelles, nous vous invitons à ne pas inscrire de Données sensibles dans le champ de saisie libre.
Ce site est protégé par reCAPTCHA, les Politiques de Confidentialité et les Conditions d'Utilisation de Google s'appliquent.

Détail des diagnostics énergétiques
DPE GES

Montant estimé des dépenses annuelles d'énergie pour un usage standard est compris entre 872 € et 1 180 € . Prix moyens des énergies indexés sur les années 2021, 2022 et 2023 (abonnements compris).

Partager avec vos proches

Facebook Facebook
Messenger Messenger
Twitter Twitter
WhatsApp WhatsApp
LinkedIn LinkedIn
Copier le lien Copier le lien
Autres biens

Ces biens peuvent aussi vous intéresser

Appartement

Coup de cœur assuré – 2 pièces de 50 m² avec jardin de 90 m² et...

Le Cannet (06110)
Prix en baisse
Voir le bien
Appartement

Vaste 2 pièces à l'état irréprochable au cœur des commodités

Le Cannet (06110)
Nouveauté
Voir le bien
Contacter
l'agence

Remplissez ce formulaire, nous ferons de notre mieux pour vous répondre dans les meilleurs délais.

Bandelier Immobilier
04 92 18 11 11
E-mail agence@bandelierimmobilier.com

Rond point du Grande Bretagne
79 Boulevard Sadi Carnot 06110 Le Cannet

TRAD_MELTEM_voscoordonnees
TRAD_MELTEM_voredemande
Règlementation

* Champ obligatoire

Les informations recueillies sur ce formulaire sont enregistrées dans un fichier informatisé par La Boite Immo agissant comme Sous-traitant du traitement pour la gestion de la clientèle/prospects de l'Agence / du Réseau qui reste Responsable du Traitement de vos Données personnelles. La base légale du traitement repose sur l'intérêt légitime de l'Agence / du Réseau. Elles sont conservées jusqu'à demande de suppression et sont destinées à l'Agence / au Réseau. Conformément à la loi « informatique et libertés », vous disposez des droits d’accès, de rectification, d’effacement, d’opposition, de limitation et de portabilité de vos données. Vous pouvez retirer votre consentement à tout moment en contactant directement l’Agence / Le Réseau. Consultez le site https://cnil.fr/fr pour plus d’informations sur vos droits. Si vous estimez, après avoir contacté l'Agence / le Réseau, que vos droits « Informatique et Libertés » ne sont pas respectés, vous pouvez adresser une réclamation à la CNIL. Nous vous informons de l’existence de la liste d'opposition au démarchage téléphonique « Bloctel », sur laquelle vous pouvez vous inscrire ici : https://www.bloctel.gouv.fr Dans le cadre de la protection des Données personnelles, nous vous invitons à ne pas inscrire de Données sensibles dans le champ de saisie libre.
Ce site est protégé par reCAPTCHA, les Politiques de Confidentialité et les Conditions d'Utilisation de Google s'appliquent.

Se connecter
Espace propriétaire
Nous suivre
Adhérents

© 2026 | Tous droits réservés | Traduction powered by Google |

  • Nos honoraires
  • Plan du site
  • Mentions légales
  • Admin
  • Nos liens
  • Politique RGPD

Comme beaucoup, notre site utilise les cookies

On aimerait vous accompagner pendant votre visite. En poursuivant, vous acceptez l'utilisation des cookies par ce site, afin de vous proposer des contenus adaptés et réaliser des statistiques !

Paramétrer

Cookies fonctionnelsCes cookies sont indispensables à la navigation sur le site, pour vous garantir un fonctionnement optimal. Ils ne peuvent donc pas être désactivés.

Statistiques de visitesPour améliorer votre expérience, on a besoin de savoir ce qui vous intéresse !
Les données récoltées sont anonymisées.

?

Google Analytics

En savoir plus