Aller à :

  • Aller à la recherche
  • Aller au menu principal
  • Aller au contenu
0
  • Accueil
  • Acheter
    • Maisons / Villas
    • Appartements
    • Terrains
    • Autres
  • Louer
  • Estimer
  • Expertiser
  • Contact
0
VotreRecherche
Dans un rayon de
BUDGET
entre et €
Min €
Max €
  1. Agence immobilière Le Cannet
  2. Vente
  3. Alpes maritimes
  4. Le cannet
  5. Appartement
  6. T4
  7. Vaste et lumineux 4 pieces au dernier etage
Nouveauté
Réf : db 4389
Appartement
Vaste et lumineux 4 pièces au dernier étage.
Nombre de pièces 4
Nombre de chambres 3
Nombre de salles de bain 1
Salle d'eau 1
480 000 €

Vaste et lumineux 4 pièces au dernier étage. Le Cannet (06110)

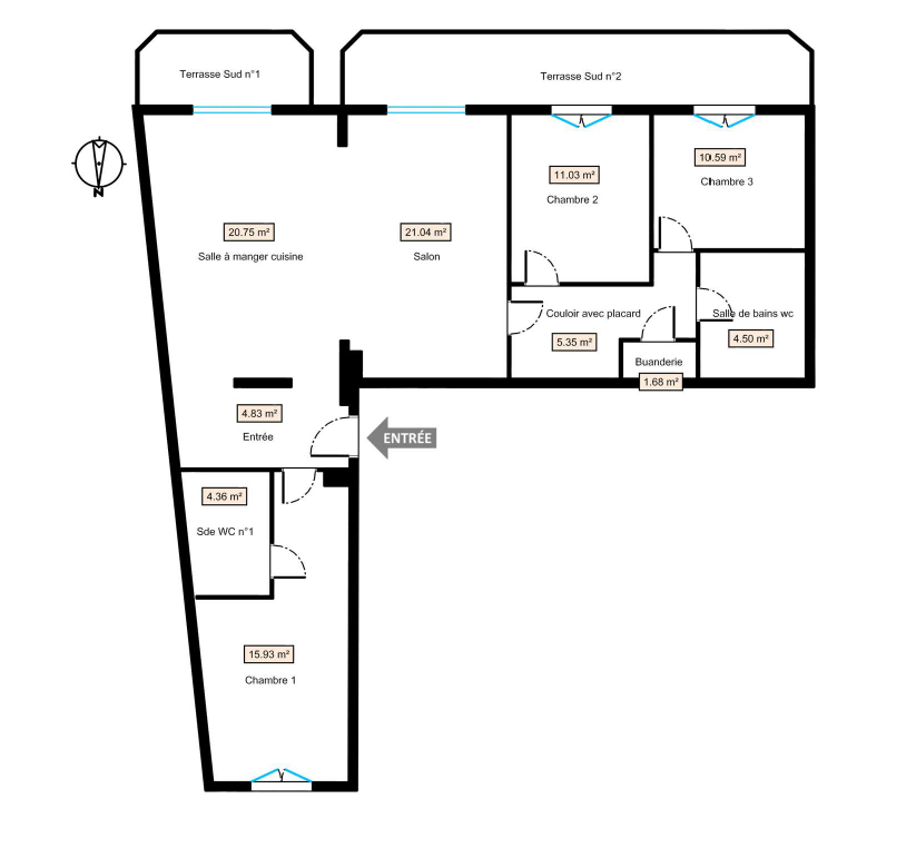
Idéalement situé au coeur des commodités, ce lumineux 4 pièces, traversant de 100 m², se trouve au 4ème et dernier étage d'une résidence récente et sécurisée avec ascenseur. Il se compose d'une entrée, une vaste pièce à vivre avec cuisine américaine de plus de 42 m², ouverte sur deux grandes terrasses au Sud et au calme, deux chambres confortables avec une salle de bains et WC, une spacieuse 3ème chambre parentale de 16 m² avec dressing, salle d'eau et WC attenants, dégagement avec penderie et un espace buanderie. Appartement en très bon état et fonctionnel. Emplacement recherché à proximité immédiate du centre et de la Place Foch. Accès rapide à Cannes et aux grands axes. Parking privatif en sous sol. Les honoraires d'agence sont à la charge de l' acquéreur inclus dans le prix de 4,8 %TTC. Nombre de lots :30 principaux d'habitation. DPE : C. Les informations sur les risques auxquels ce bien est exposé sont disponibles sur le site : https://www.georisques.gouv.fr.

  • Général
  • Détails +
  • Copropriété
  • Financier
  • DPE
Caractérisque Valeurs
Code postal 06110
Surface habitable (m²) 100 m²
Surface loi Carrez (m²) 100,06 m²
Nombre de chambre(s) 3
Nombre de pièces 4
Etage 4
Ascenseur OUI
Vue dégagée
Caractérisque Valeurs
Nb de salle de bains 1
Nb de salle d'eau 1
Cuisine Américaine
Type de cuisine Equipée
Mode de chauffage Gaz
Type de chauffage TRAD_TYPE_CHAUFF_CHAUDIERE
Format de chauffage Collectif
Terrasse OUI
Cave NON
Exposition Nord-Sud
Année de construction 2012
Caractérisque Valeurs
Copropriété OUI
nombre de lots 30
Caractérisque Valeurs
Prix de vente honoraires TTC inclus 480 000 €
Prix de vente honoraires TTC exclus 458 000 €
Honoraires TTC à la charge acquéreur 4,8 %
Charges 500 €
Taxe foncière annuelle 1 798 €
DPE GES
Cette offre vous intéresse
BARDIN Damien Négociateur
04 92 18 11 11
E-mail damien@bandelierimmobilier.com
cette offre vous intéresse ?
Contacter l'agence
04 92 18 11 11

* champs obligatoire

Les informations recueillies sur ce formulaire sont enregistrées dans un fichier informatisé par La Boite Immo agissant comme Sous-traitant du traitement pour la gestion de la clientèle/prospects de l'Agence / du Réseau qui reste Responsable du Traitement de vos Données personnelles.
La base légale du traitement repose sur l’intérêt légitime de l'Agence / du Réseau.
Elles sont conservées jusqu'à demande de suppression et sont destinées à l'Agence / au Réseau.
Conformément à la loi « informatique et libertés », vous pouvez exercer votre droit d'accès aux données vous concernant et les faire rectifier en contactant l'Agence / le Réseau.
Si vous estimez, après avoir contacté l'Agence / le Réseau, que vos droits « Informatique et Libertés » ne sont pas respectés, vous pouvez adresser une réclamation à la CNIL.
Nous vous informons de l’existence de la liste d'opposition au démarchage téléphonique « Bloctel », sur laquelle vous pouvez vous inscrire ici : https://www.bloctel.gouv.fr 
Dans le cadre de la protection des Données personnelles, nous vous invitons à ne pas inscrire de Données sensibles dans le champ de saisie libre
Ce site est protégé par reCAPTCHA, les Politiques de Confidentialité et les Conditions d'Utilisation de Google s'appliquent.

Partager le bien
Nos outils
Imprimer Imprimer
Calculatrice financière

* Champ obligatoire

Partager l'annonce

* champs obligatoire

Les informations recueillies sur ce formulaire sont enregistrées dans un fichier informatisé par La Boite Immo agissant comme Sous-traitant du traitement pour la gestion de la clientèle/prospects de l'Agence / du Réseau qui reste Responsable du Traitement de vos Données personnelles.
La base légale du traitement repose sur l’intérêt légitime de l'Agence / du Réseau.
Elles sont conservées jusqu'à demande de suppression et sont destinées à l'Agence / au Réseau.
Conformément à la loi « informatique et libertés », vous pouvez exercer votre droit d'accès aux données vous concernant et les faire rectifier en contactant l'Agence / le Réseau.
Si vous estimez, après avoir contacté l'Agence / le Réseau, que vos droits « Informatique et Libertés » ne sont pas respectés, vous pouvez adresser une réclamation à la CNIL.
Nous vous informons de l’existence de la liste d'opposition au démarchage téléphonique « Bloctel », sur laquelle vous pouvez vous inscrire ici : https://www.bloctel.gouv.fr 
Dans le cadre de la protection des Données personnelles, nous vous invitons à ne pas inscrire de Données sensibles dans le champ de saisie libre
Ce site est protégé par reCAPTCHA, les Politiques de Confidentialité et les Conditions d'Utilisation de Google s'appliquent.

Détail des diagnostics énergétiques
DPE GES

Montant estimé des dépenses annuelles d'énergie pour un usage standard est compris entre 570 € et 860 € . Prix moyens des énergies indexés sur les années 2021, 2022 et 2023 (abonnements compris).

Partager avec vos proches

Facebook Facebook
Messenger Messenger
Twitter Twitter
WhatsApp WhatsApp
LinkedIn LinkedIn
Copier le lien Copier le lien
Autres biens

Ces biens peuvent aussi vous intéresser

Appartement

agréable villa/appartement 4 p 98 m2 sur jardin 280 m2

Le Cannet (06110)
Exclusif
Voir le bien
Appartement

4 p 113 m2

Le Cannet (06110)
Exclusif
Coup de coeur
Voir le bien
Contacter
l'agence

Remplissez ce formulaire, nous ferons de notre mieux pour vous répondre dans les meilleurs délais.

Bandelier Immobilier
04 92 18 11 11
E-mail agence@bandelierimmobilier.com

Rond point du Grande Bretagne
79 Boulevard Sadi Carnot 06110 Le Cannet

TRAD_MELTEM_voscoordonnees
TRAD_MELTEM_voredemande
Règlementation

* Champ obligatoire

Les informations recueillies sur ce formulaire sont enregistrées dans un fichier informatisé par La Boite Immo agissant comme Sous-traitant du traitement pour la gestion de la clientèle/prospects de l'Agence / du Réseau qui reste Responsable du Traitement de vos Données personnelles.
La base légale du traitement repose sur l’intérêt légitime de l'Agence / du Réseau.
Elles sont conservées jusqu'à demande de suppression et sont destinées à l'Agence / au Réseau.
Conformément à la loi « informatique et libertés », vous pouvez exercer votre droit d'accès aux données vous concernant et les faire rectifier en contactant l'Agence / le Réseau.
Si vous estimez, après avoir contacté l'Agence / le Réseau, que vos droits « Informatique et Libertés » ne sont pas respectés, vous pouvez adresser une réclamation à la CNIL.
Nous vous informons de l’existence de la liste d'opposition au démarchage téléphonique « Bloctel », sur laquelle vous pouvez vous inscrire ici : https://www.bloctel.gouv.fr 
Dans le cadre de la protection des Données personnelles, nous vous invitons à ne pas inscrire de Données sensibles dans le champ de saisie libre
Ce site est protégé par reCAPTCHA, les Politiques de Confidentialité et les Conditions d'Utilisation de Google s'appliquent.

Se connecter
Espace propriétaire
Nous suivre
Adhérents

© 2025 | Tous droits réservés | Traduction powered by Google |

  • Nos honoraires
  • Plan du site
  • Mentions légales
  • Admin
  • Nos liens
  • Politique RGPD

Comme beaucoup, notre site utilise les cookies

On aimerait vous accompagner pendant votre visite. En poursuivant, vous acceptez l'utilisation des cookies par ce site, afin de vous proposer des contenus adaptés et réaliser des statistiques !

Paramétrer

Cookies fonctionnelsCes cookies sont indispensables à la navigation sur le site, pour vous garantir un fonctionnement optimal. Ils ne peuvent donc pas être désactivés.

Statistiques de visitesPour améliorer votre expérience, on a besoin de savoir ce qui vous intéresse !
Les données récoltées sont anonymisées.

?

Google Analytics

En savoir plus